Skip To Content

811 N Oneonta Drive

Los Angeles (City), CA 90065
  • $425,000
  • STATUS: Active
  • ON SITE: 40 Days
  • ID#: 25599207
UPDATED: 47 min ago
$425,000
  • 0
    BEDS
  • 0.13
    ACRES
  • 0
    BATHS
  • 0
    1/2 BATHS
Neighborhood:
Type:
Vacant Land / Lots
County:

School Ratings & Info

Listing Agent(s): Victor Migenes of Property Concierge (310-463-5181)


Description

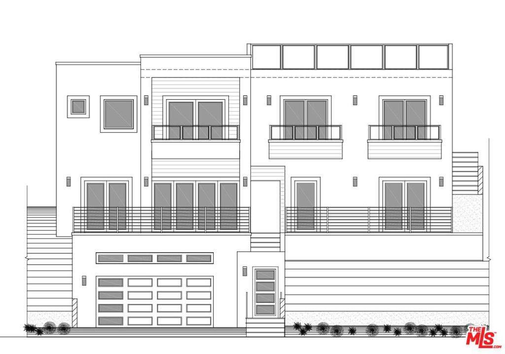
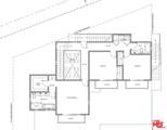
Views Views Views! Excellent opportunity to develop in the lush hills of the coveted Mount Washington neighborhood. Architectural plans, reports, surveys, most of the time consuming work is already done!. Seller/Contractor is offering to sell or partner on this hillside home development with approximately 180 degree hillside view. Contemporary elegance is the vision for this open floor plan Single Family 3 level Home with state of the art amenities and taking full advantage of the lush hillside and starlight views, with an attached 2 car garage, totaling 2557 Sqft of home on a 5624 sqft lot. 4 bedrooms, 3 baths, multiple skylights and balconies, a rooftop deck for star gazing, a deck off the main floor engineered for a spa/pool water feature for that modern indoor/outdoor living and entertaining experience, even the luxury of a backyard to plant your organic veggies! First level is the Garage with its own deck, Second level of the home includes the main floor living areas along with one of the bedrooms/office. The Third level of the home has 3 bedrooms including the primary suite with private balcony. The listing is priced for the project purchase. A Partnership buy in is at $150K and will share 50/50 on expenses and profits. Initial plans available for review. Please call LA1 for more information, partnership purchase requirements and up to date status on the project.

Monthly Payment Calculator



Based on information from California Regional Multiple Listing Service, Inc. as of 2025-11-11T14:30:50.323. This information is for your personal, non-commercial use and may not be used for any purpose other than to identify prospective properties you may be interested in purchasing. Display of MLS data is deemed reliable but is not guaranteed accurate by the MLS or SLO Real Estate Group | Keller Williams Realty Central Coast. Licensed in the State of California, USA.
www.slorealestategroup.com/homes/168431258
Print Image

811 N Oneonta Drive Los Angeles (City), CA 90065

  • Price: $425,000
  • Status: Active
  • On Site: 40 Days
  • Updated: 47 min ago
  • ID#: 25599207
0
Beds
0
Baths
0
½ Baths
0.13
Acres
Neighborhood:
680 - Mount Washington
County:
Los Angeles
Area:
680 - Mount Washington
Property Description
Views Views Views! Excellent opportunity to develop in the lush hills of the coveted Mount Washington neighborhood. Architectural plans, reports, surveys, most of the time consuming work is already done!. Seller/Contractor is offering to sell or partner on this hillside home development with approximately 180 degree hillside view. Contemporary elegance is the vision for this open floor plan Single Family 3 level Home with state of the art amenities and taking full advantage of the lush hillside and starlight views, with an attached 2 car garage, totaling 2557 Sqft of home on a 5624 sqft lot. 4 bedrooms, 3 baths, multiple skylights and balconies, a rooftop deck for star gazing, a deck off the main floor engineered for a spa/pool water feature for that modern indoor/outdoor living and entertaining experience, even the luxury of a backyard to plant your organic veggies! First level is the Garage with its own deck, Second level of the home includes the main floor living areas along with one of the bedrooms/office. The Third level of the home has 3 bedrooms including the primary suite with private balcony. The listing is priced for the project purchase. A Partnership buy in is at $150K and will share 50/50 on expenses and profits. Initial plans available for review. Please call LA1 for more information, partnership purchase requirements and up to date status on the project.
Exterior Features

Lot Features Sloped Up Parking Total 0 View Park/GreenbeltHillsMountain(s) View YN Yes

Property Features

Association YN No Listing Agreement Seller Reserved Listing Service Full Service New Construction YN No Senior Community YN No Sewer Other Special Listing Conditions Standard Zoning LAR1



Based on information from California Regional Multiple Listing Service, Inc. as of 2025-11-11T14:30:50.323. This information is for your personal, non-commercial use and may not be used for any purpose other than to identify prospective properties you may be interested in purchasing. Display of MLS data is deemed reliable but is not guaranteed accurate by the MLS or SLO Real Estate Group | Keller Williams Realty Central Coast. Licensed in the State of California, USA.
 
https://bt-photos.global.ssl.fastly.net/socal/orig_boomver_1_400635398-2.jpg https://bt-photos.global.ssl.fastly.net/socal/orig_boomver_1_400635398-2.jpg https://bt-photos.global.ssl.fastly.net/socal/orig_boomver_1_400635398-2.jpg
Logo
SLO Real Estate Group | Keller Williams Realty Central Coast
962 Mill Street
San Luis Obispo CA, 93401
Listing Agent(s): Victor Migenes of Property Concierge (310-463-5181)